When I was planning the observatory, I was hoping to keep the costs down by avoiding any unnecessary engineering. I’m an Electrical Engineer, but not a civil or structural engineer. Fortunately, my Dad was a housebuilder and I helped him on countless jobs when I was younger, so I was no stranger to construction work. But this was going to be a bit different than a house.
One of the design goals was to get the telescope a fair bit above the ground. This has several advantages – it means that nearby trees are less of an issue when observing objects near the horizon, and also helps reduce the effects of ground heating on atmospheric steadiness. So I decided on a three storey design, getting the telescope around 25 feet above the surrounding terrain.
Because I don’t like heights (never have!), the building will be constructed like a “wedding cake” with each storey inset from the one below, providing a bit of a balcony and place to work from when constructing the next storey.
In any case, in speaking with our local building inspector, the way to avoid having an engineer design the structure is to build it essentially like a house. As a result, some things will be “over engineered” for its intended purpose, but I’d rather spend the money in buliding the structure stronger than necessary.
It’s meant countless hours being spent going through all kinds of details in the Alberta edition of the National Building Code (it’s 1500 pages long!), following the prescriptive rather than the performance requirements. But in the end, our design satisfied the building inspector.
The observatory will be unheated, with the exception of a small computer room in the floor below the telescope. Observatories are unheated so the telescope is at the same temperature as outside. This helps maintain stability in the air that the telescope is looking through. If you think of how the air shimmers over a hot road during the summer, that is the kind of thing we want to avoid, as a telescope will magnify the effect far beyond what you would notice visually.
Below, you’ll find the plans showing the foundation. Since we live in an area where the frost goes down quite deep, and since the building will be unheated, our footings will be 8 feet below grade so they don’t freeze in the winter. The large rectangular shape in the middle with the diagonal structures leading off from it is the pad on which the telescope pier will stand. The diagonal structures are 10 feet deep piles driven at 30 degree angles (themselves at the bottom of the 8 foot deep excavation) and poured as part of the pad. You can think of those piles as acting similar to tripod legs, helping resist the telescope pier from tending to tilt over time.
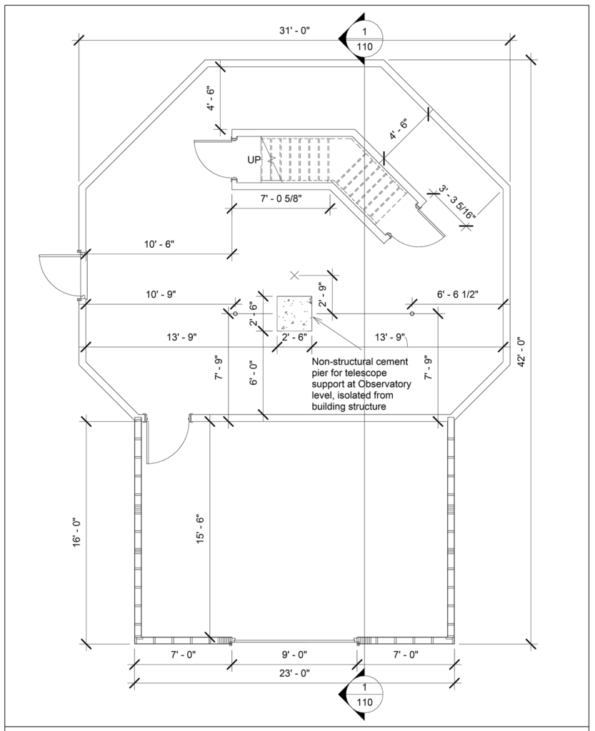
The telescope pier itself at the centre is physically separate from the rest of the building; the building is constructed around the pier without touching it, so any vibrations from wind, people walking around, etc. are not transferred to the telescope.
The foundation is fully backfilled inside and out; there is no basement. It is at the depth it is to provide a stable framework for the rest of the structure to rest on, designed for the cold temperatures we can experience here in the winter.

The main purpose of the first floor is to help get the telescope as high as possible. Its floor plan is below. It’s generally a pretty open space, mostly consisting just of the telescope pier and starway to the second floor. A rectangular room to the south will be used for storage, with its roof forming a balcony for the second floor.

The second floor consists of balcony space over a large part of the lower structure, continuing upwards with an octagonal section below the telescope. You’ll see the stairwell coming up from the first floor, and continuing up to the third floor. In addition, a room is partitioned off along the south and west sides, which is where the computers and other equipment controlling the telescope will be located. It will be insulated and provided with an electric heater to prevent it from getting too cold in the winter, though from past experience, computers running in an enclosed environment like that are pretty good at keeping the room warm just on their own. Any excess heat will be exhausted from the far south wall of the lower structure, as far from the dome as possible.

The third floor will house the telescope itself and will be topped by a 14.5 foot dome made by the Ash Manufacturing Company. The dome will be fully automated, supporting the eventual use of the observatory to be capable of remote operation.
There will be a walkway surrounding the third floor, on the roof of the second floor. The telescope pier is offset from the centre of the dome. This is because the telescope will be mounted on a wedge, turning it from an Alt-Az mount to an equatorial mount. But the wedge results in the centre of the telescope being offset from the pier, which is accommodated by the pier offset towards the south.

A cutaway view of the observatory is useful to visualize how the various storeys work in relation to each other, and to illustrate the structure of the telescope pier and pad in more detail.

Finally, an isometric view of the full building is provided below.

Top: Construction
Next: Staking out the site
